Bought with The Corcoran Group
For more information regarding the value of a property, please contact us for a free consultation.
157 Bryn Mawr DR Lake Worth Beach, FL 33460
Want to know what your home might be worth? Contact us for a FREE valuation!

Our team is ready to help you sell your home for the highest possible price ASAP
Key Details
Sold Price $1,600,000
Property Type Single Family Home
Sub Type Single Family Detached
Listing Status Sold
Purchase Type For Sale
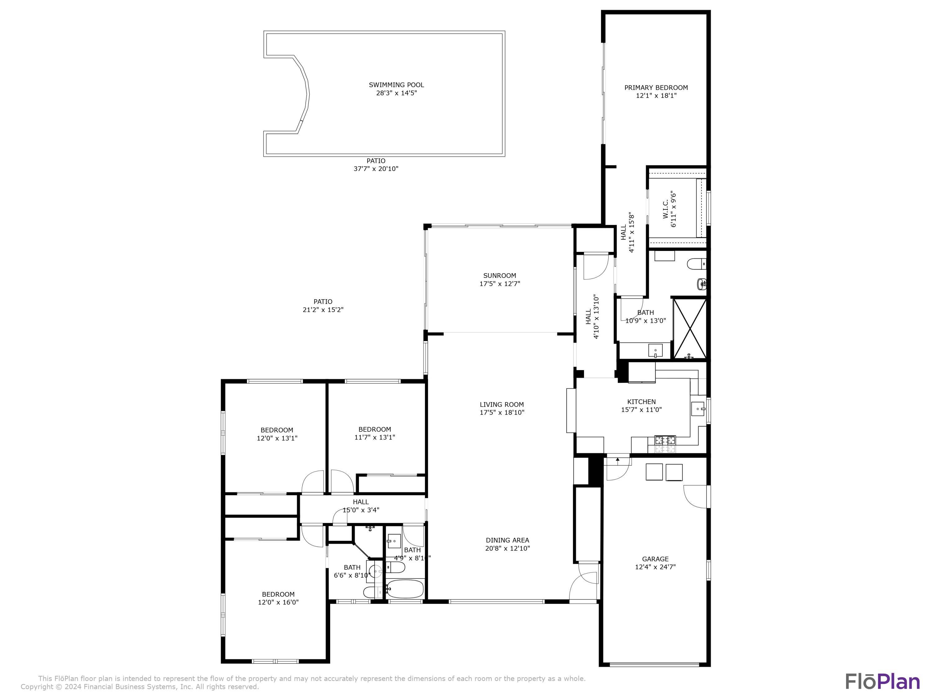
Square Footage 2,453 sqft
Price per Sqft $652
Subdivision College Park Add 3
MLS Listing ID RX-11130066
Style Mid Century,Ranch
Bedrooms 4
Full Baths 3
Year Built 1953
Annual Tax Amount $17,272
Tax Year 2024
Lot Size 9,000 Sqft
Property Sub-Type Single Family Detached
Property Description
Step into tranquility with this exquisite mid-century modern in the heart of Lake Worth Beach. This 4-bedroom, 3-bath residence blends eclectic design with contemporary decor. Experience a super relaxed ambiance as you wander through the beautifully landscaped yard, offering harmonious privacy and, connection to nature. The home's split floor plan offers open living areas as well as privacy for family and guest rooms it truly creates an inviting atmosphere, impact windows offer peace of mind and large sliders leading to pool add an abundance of natural light. Recent upgrades include Roof replaced in 2023 and A/C, water heater, as well as a dishwasher, washer, dryer, pool pump and, more. Escape to your own tropical paradise with this stunning backyard oasis.
Location
State FL
County Palm Beach
Area 5600
Zoning SF-R(c
Rooms
Other Rooms Florida, Laundry-Garage
Interior
Heating Central, Zoned
Cooling Ceiling Fan, Central, Zoned
Flooring Marble, Terrazzo Floor, Wood Floor
Exterior
Exterior Feature Auto Sprinkler, Custom Lighting, Fence, Open Porch, Outdoor Shower, Shutters
Parking Features 2+ Spaces, Driveway, Garage - Attached
Garage Spaces 1.0
Pool Inground, Salt Chlorination
Community Features Sold As-Is
Utilities Available Electric, Gas Natural, Public Sewer, Public Water
Amenities Available Bike - Jog
Waterfront Description None
View Pool
Roof Type Tar/Gravel
Exposure North
Building
Lot Description < 1/4 Acre, East of US-1
Story 1.00
Foundation CBS
Others
Acceptable Financing Cash, Conventional, FHA, VA
Listing Terms Cash, Conventional, FHA, VA
Pets Allowed No Restrictions
Read Less
GET MORE INFORMATION





